$565,000
1,750
SQ FT
$323
SQ/FT
24271 Shady Lane
@ Biggar - Covelo
- 2 Bed
- 3 (2/1) Bath
- 6 Park
- 1,750 sqft
- Covelo
-
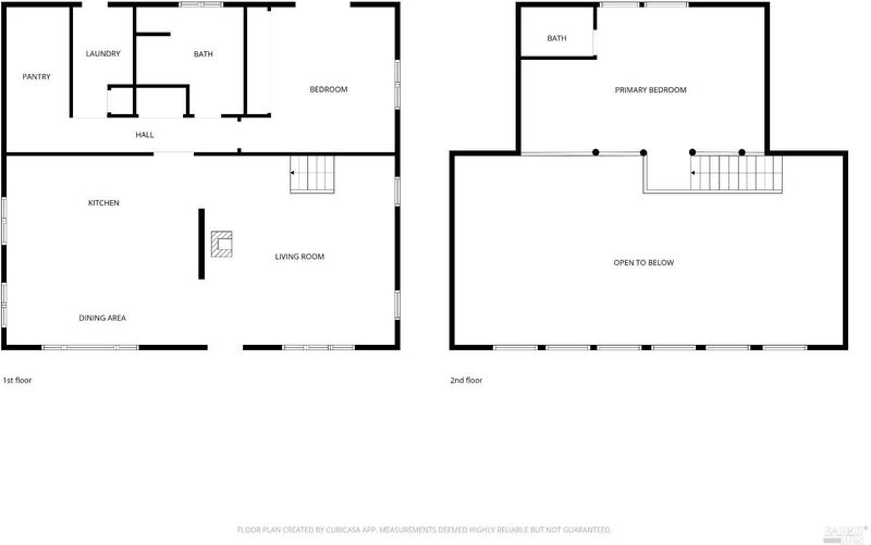
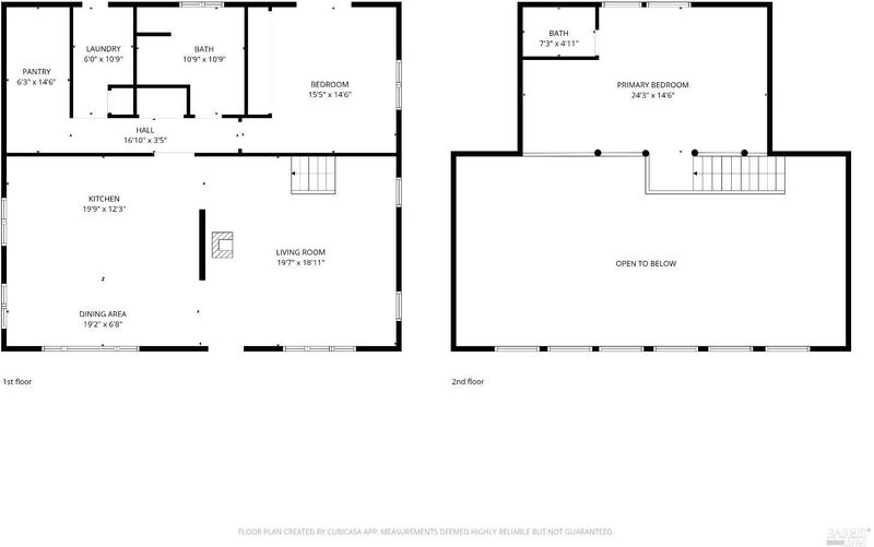
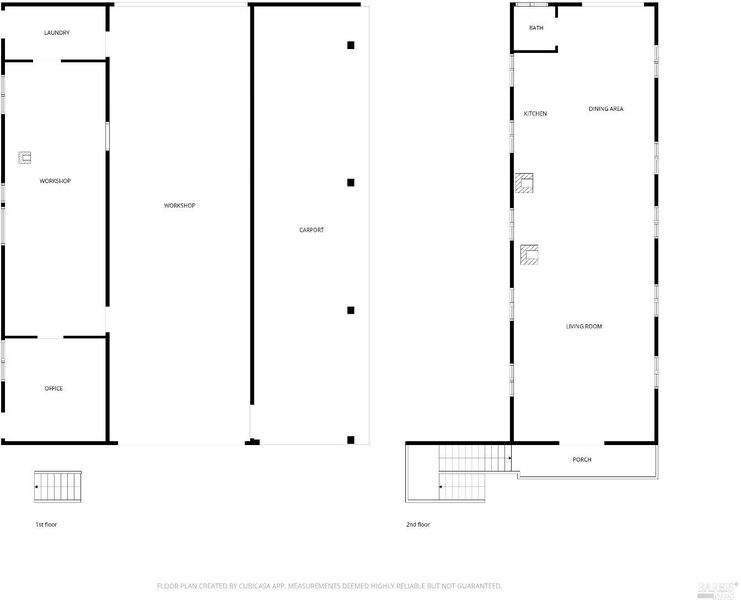
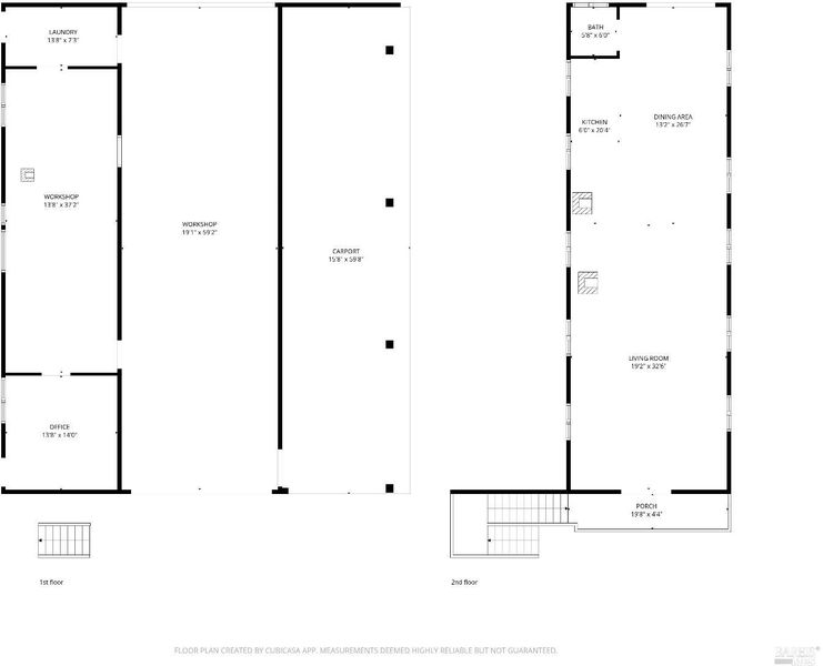
Set in the heart of Covelo Valley's sought-after valley floor, this beautiful ranch offers 20 usable, flat acres with end-of-road privacy in a truly park-like setting. A rare blend of open pasture, mature oaks, ponds, and a seasonal stream creates an ideal backdrop for country living, livestock, or agricultural use. Over half the property is fenced, ready for cattle or horses, with ample space for gardening, orchards, and homesteading. The custom log cabin home features an inviting open floor plan with warm, rustic finishes throughout. The main level includes one bedroom, one full bathroom with dual sinks, a utility room, and additional storage. The spacious living area showcases hardwood floors, a stunning rock wall fireplace, and pellet stove, flowing into a well-appointed kitchen with cooktop island, Corian countertops, custom cabinetry, and dishwasher. Double doors from the primary bedroom open to a peaceful back deck with an outdoor gazebo kitchen, perfect for entertaining or relaxing in the natural surroundings. A large loft occupies half the upper level, offering flexible living space and a convenient half bath, all overlooking the main living area and framed by picturesque upper-eave windows. Additional improvements include a detached barn with studio unit above, shop space, office area, utility room, and covered parking. Established fruit trees, PG&E power, propane, private well, and septic system complete the infrastructure. Gated access, privacy, and close proximity to town and local amenities make this a standout opportunity. A true legacy ranch property offered at an exceptional value, ready for your vision.
- Days on Market
- 0 days
- Current Status
- Active
- Original Price
- $565,000
- List Price
- $565,000
- On Market Date
- Apr 28, 2026
- Property Type
- Single Family Residence
- Area
- Covelo
- Zip Code
- 95428
- MLS ID
- 326028471
- APN
- 032-400-34-00
- Year Built
- 1984
- Stories in Building
- Unavailable
- Possession
- Close Of Escrow
- Data Source
- BAREIS
- Origin MLS System
Eel River Charter School
Charter K-6 Elementary
Students: 52 Distance: 0.8mi
Round Valley High School
Public 9-12 Secondary
Students: 104 Distance: 1.0mi
Round Valley Elementary School
Public K-8 Elementary
Students: 291 Distance: 1.0mi
Round Valley Continuation School
Public 9-12 Continuation
Students: 14 Distance: 1.0mi
Covelo SDA School
Private K-2, 5-8 Elementary, Religious, Coed
Students: NA Distance: 1.1mi
Spy Rock Elementary School
Public K-8 Elementary
Students: 10 Distance: 14.3mi
- Bed
- 2
- Bath
- 3 (2/1)
- Parking
- 6
- Covered, Detached, Uncovered Parking Spaces 2+
- SQ FT
- 1,750
- SQ FT Source
- Assessor Agent-Fill
- Lot SQ FT
- 871,200.0
- Lot Acres
- 20.0 Acres
- Kitchen
- Island, Pantry Closet, Synthetic Counter
- Cooling
- Ceiling Fan(s)
- Dining Room
- Formal Area
- Exterior Details
- Kitchen
- Living Room
- Cathedral/Vaulted, Open Beam Ceiling
- Flooring
- Carpet, Vinyl, Wood
- Foundation
- Concrete Perimeter
- Fire Place
- Free Standing, Kitchen, Living Room, Pellet Stove, Wood Burning
- Heating
- Pellet Stove, Wood Stove
- Laundry
- Hookups Only, Inside Room
- Upper Level
- Loft, Partial Bath(s)
- Main Level
- Bedroom(s), Dining Room, Full Bath(s), Kitchen, Living Room, Primary Bedroom
- Views
- Valley
- Possession
- Close Of Escrow
- Basement
- None
- Architectural Style
- Log
- Fee
- $0
MLS and other Information regarding properties for sale as shown in Theo have been obtained from various sources such as sellers, public records, agents and other third parties. This information may relate to the condition of the property, permitted or unpermitted uses, zoning, square footage, lot size/acreage or other matters affecting value or desirability. Unless otherwise indicated in writing, neither brokers, agents nor Theo have verified, or will verify, such information. If any such information is important to buyer in determining whether to buy, the price to pay or intended use of the property, buyer is urged to conduct their own investigation with qualified professionals, satisfy themselves with respect to that information, and to rely solely on the results of that investigation.
School data provided by GreatSchools. School service boundaries are intended to be used as reference only. To verify enrollment eligibility for a property, contact the school directly.

































































